27248 Sand Street Lot# 6, Salvo

$393,900

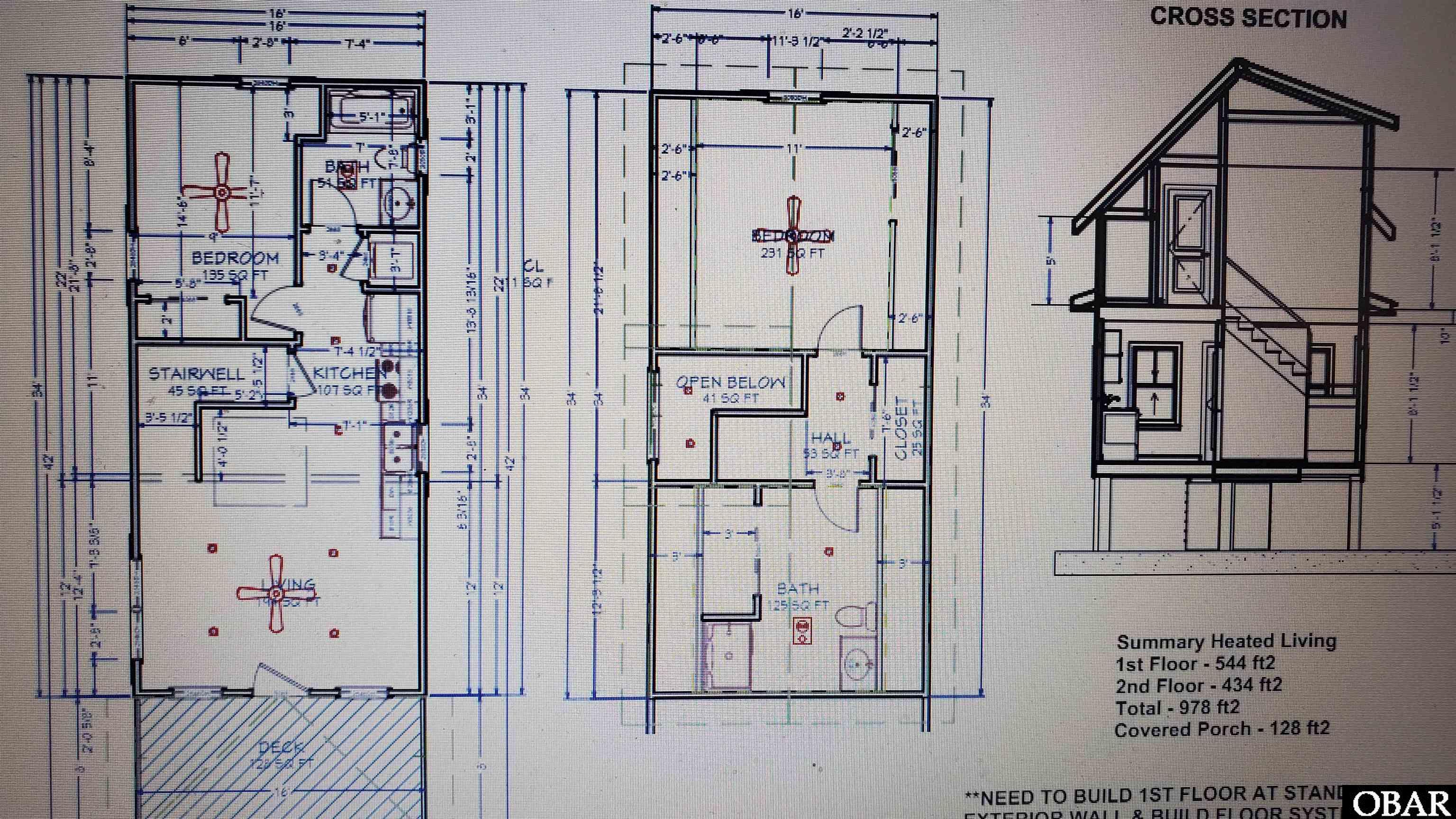
MLS#: 130329 Property Type: Single Family - Detached Address: 27248 Sand Street Lot# 6 City / Zip: Salvo, NC 27972 Area: Salvo Oceanside County: Dare Neighborhood: J B Hooper Bedrooms: 2 Bathrooms: 2 Heated Sq Ft: 978 Year Built: 2024 Zoning: S 1 Date Listed: 08/27/2025 Status: Under Contract

Agent's Comments

COMPLETE AND READY TO ENJOY THIS SUMMER..... Don't miss the opportunity to be part of this affordable quaint oceanside development.....Sea Glass Cottages is a unique opportunity to own a cottage that is just steps away for one of the best beaches in the OBX..... Enjoy the ocean breeze on your front porch or take a stroll on one of the best uncrowded beaches in all the OBX...... This two bedroom home is well appointed with granite counters and high end finishes similar to the multimillion dollar homes that are being built all around the area.....This is the six home in a collection of eight affordable cottages.....Please take a tour of our home and envision yourself enjoying quiet days and summer breezes at the beach in the quaint tri-villages area.

*Listing provided courtesy of the The Virtual Realty Group OBX.
Interior Features
  • Air Conditioning: Central, Heat Pump
  • Appliances: Dishwasher, Microwave, Range/Oven, Refrigerator w/Ice Maker
  • Countertops: Solid Surface
  • Floor Covering: Luxury Vinyl Plank
  • Furnishings Available: No
  • Heating: Central, Heat Pump
  • Water: Municipal
External Features
  • Association Amenities: Common Area
  • Exterior: Composite Siding
  • Foundation: Piling
  • Garage: None
  • Lot Description: Level
  • Parking: Off Street
  • Pool: No
  • Roads: Public
  • Roof: Asphalt/Fiber Shingle
  • Sewer/Septic: Private Septic
  • Style: Traditional
  • Waterfront Location: Semi-Oceanfront (2nd row)
Additional Features
  • Associated Document Count: 2
  • Contruction: Frame, Wood
  • County: Dare
  • Deed Book: 0672
  • Deed Book Pg: 2593
  • Ownership: Owned More than 12 Months
  • Rental Company: None
  • Status Date: 2026-03-29
  • Property Sub Type: Single Family Residence
  • Year Built: 2024
  • Zoning: S 1
Inquire
Want To Know More About This Listing?
Leave this field empty

Listings provided courtesy of The Virtual Realty Group OBX and the MLS of the Outer Banks Association of Realtors®, Inc.

Information deemed reliable but not guaranteed. Listings come from many brokers and not all listings from MRIS may be visible on this site.

Copyright © 2026 MRIS - All Rights Reserved

Nearby Schools Mortgage Calculator
OR

Area Specialist

Danielle Fenyak
Broker
Email: danielle@outerbanksblue.com
Office Phone: (252) 255-1220 x323
Cell Phone: (252) 256-2105